Villetta a schiera in Vendita a Trento
Zona: Villazzano
Classe energetica
D
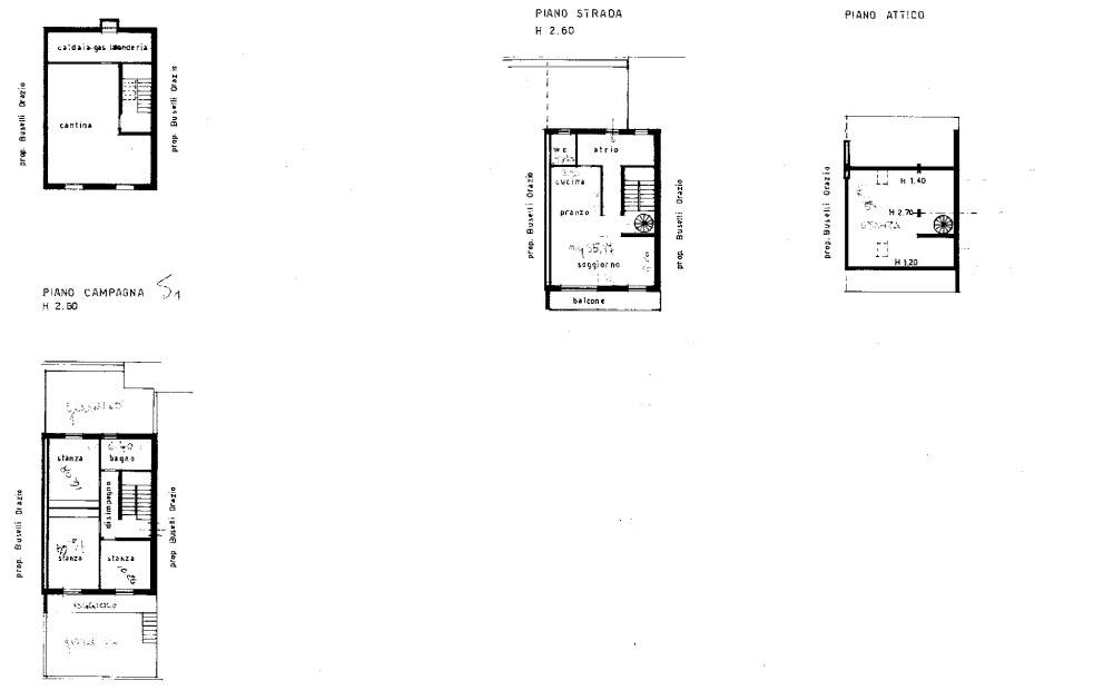
SAN ROCCO DI VILLAZZANO VENDESI CASA A SCHIERA SU PIU LIVELLI. COMPOSTA DA INGRESSO, AMPIO SOGGIORNO E CUCINA CON BALCONE CON SCALETTA CHE SCENDE NEL GIARDINO MOLTO SOLEGGIATO., 3 STANZE DA LETTO, 2 BAGNI FINESTRATI. AL PIANO INTERR ATO SI TROVA UNA BELLA STUBE CON LOCALE LAVANDERIA E CALDAIA. E' PRESENTE UNA MANSARDA OPENSPACE. A PIANO STRADA GARAGE DOPPIO IN LUNGHEZZA, CON POSTO AUTO FRONTALE.
LUMINOSA, SOLEGGIATA, PANORAMICA.
Informazioni immobile
Codice: SCHIERA SAN ROCCO
Contratto: Vendita
Tipologia: Villetta a schiera
Regione: Trentino Alto Adige
Provincia: Trento
Comune: Trento
Zona: Villazzano
Prezzo: € 440.000
Totale mq: 200 mq
Camere: 3
Bagni: 2
Locali: 7
Stato conservazione: Buono
Riscaldamento: Autonomo
Posto auto: Scoperto
Età costruzione: 1980
Stato attuale: Libero al rogito
Disponibile: Si
Balconi: Presente, 5 mq
Giardino: Privato, 20 mq
Cucina: A vista
Box: Doppio, 25 mq
Arredato: Non arredato
Caratteristiche
Antenna Tv: Autonoma
Copertura ADSL
Cantina: 15 m²
Doccia
Infissi in legno
Tapparelle
Nelle vicinanze
Centri Benessere
Campi da Tennis
Parchi Giochi
Trasporti Pubblici
Scuole Elementari
Scuole Medie
Mappa immobile
Condividi
Ultimo aggiornamento 02-04-2026

















































